
MIL-PRF-32001
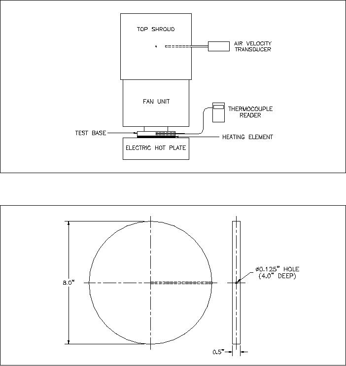
FIGURE 2. Standard test setup
FIGURE 3. Aluminum test base
With the fan unit in the standard test setup as described, adjust the electric hot plate to a
setting that produces a test base temperature which is within 5°F but not greater than the lowest
temperature in Table I. Once the base temperature has stabilized at the desired setting, allow the
8
For Parts Inquires call Parts Hangar, Inc (727) 493-0744
© Copyright 2015 Integrated Publishing, Inc.
A Service Disabled Veteran Owned Small Business